Aller au contenu principal

Prev
Next
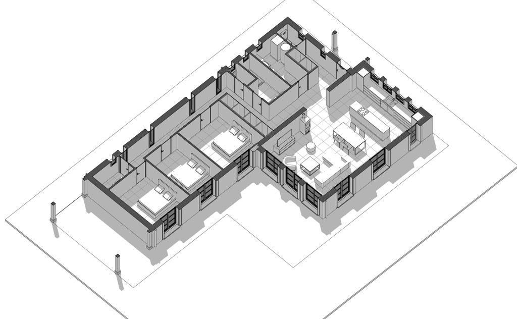
branellec bataille maison cabourg plein pied 3D
  • bataille maison cabourg plein pied 3D
  • bataille maison cabourg plein pied 3D

Projet de construction d’une maison d’habitation de plain-pied à Cabourg.

Partager :

  • Partager sur Mastodon(ouvre dans une nouvelle fenêtre) Mastodon
  • Partager sur Bluesky(ouvre dans une nouvelle fenêtre) Bluesky
  • Plus
  • Partager sur X(ouvre dans une nouvelle fenêtre) X
  • Partager sur Facebook(ouvre dans une nouvelle fenêtre) Facebook

Sujets

3D, Ardoises, Contemporain, Maison individuelle

BRANELLEC-BATAILLE Architectes et Associés

Chargement des commentaires…

    • S'abonner Abonné
      • BRANELLEC-BATAILLE
      • Vous disposez déjà dʼun compte WordPress ? Connectez-vous maintenant.
      • BRANELLEC-BATAILLE
      • S'abonner Abonné
      • S’inscrire
      • Connexion
      • Copier lien court
      • Signaler ce contenu
      • Voir la publication dans le Lecteur
      • Gérer les abonnements
      • Réduire cette barre